建物内の別の間取りでも空室がある場合がございます。
ご指名物件の空室待ちなども受付けておりますので、お電話かメールにてスタッフまでお申付下さい。
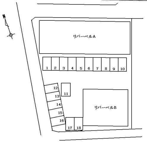
※写真や図と現況が異なる場合は現況を優先させていただきます。
| 所在階 | 間取り | 面積 | 賃料 | 管理費/共益費 | 敷金(保証金) | 礼金 | 採光向き | 詳細 |
|---|---|---|---|---|---|---|---|---|
| 2 階 | 2LDK | 67.36㎡ | 成約済 | 成約済 | 成約済 | 成約済 | 南 | 成約済 |
| 物件種別 | アパート | ||
|---|---|---|---|
| 物件名 | リバーベルA | ||
| 物件所在地 | 名古屋市名東区牧の原3丁目 | ||
| 交通機関 |
|
||
| 周辺施設 |
|
||
| 特記事項 | 子供可、二人入居可、ネコ可、ペット対応、保証会社利用可 | ||
| 賃料 | 72,000円 | 管理費/共益費 | 3,500円 |
| 間取り | 2LDK | 専有面積 | 67.36㎡ |
| 総戸数 | - | 竣工月 | 2010年9月 |
| 建築構造 | 木造 | 建物階建 | 地上3階 |
| 駐車場 | 有 | 駐車料 | 7,700円 |
| 設備 | ガス(都市ガス)、24時間緊急対応、インターホン(TVモニター付き)、専用ゴミ置き場(あり)、駐輪場、フローリング、二重ガラス、メゾネット、ベランダ・バルコニー、収納スペース、クローゼット、下駄箱、バス・トイレ別(別室)、シャワー、追い焚き、浴室乾燥機、オートバス、給湯、ウォームレット、洗面所独立、シャンプードレッサー、洗面所に窓、洗面所にドア、洗濯機置き場(室内)、コンロ設置可、コンロ種類(都市ガス)、カウンターキッチン、対面キッチン、エアコン、24H換気システム、BS、CATV | ||
| 所在地 | 〒465-0025 愛知県名古屋市名東区上社2-74 | ||
|---|---|---|---|
| 営業時間 | 10:00~18:00 | 定休日 | 年中無休 ※GW・お盆・年末年始は除く |

JR中央線『新守山
駅』より徒歩6分
愛知県名古屋市守山区金屋1丁目18-21

JR中央線『新守山
駅』より徒歩5分
愛知県名古屋市守山区金屋1丁目27-7

ゆとりーとライン『金屋
駅』より徒歩7分
愛知県名古屋市守山区金屋2丁目112

JR中央線『高蔵寺
駅』より徒歩21分
愛知県名古屋市守山区大字上志段味字大塚1247

JR中央線『高蔵寺
駅』より徒歩18分
愛知県名古屋市守山区大字上志段味字上島738

JR中央線『高蔵寺
駅』より徒歩16分
愛知県名古屋市守山区大字上志段味字上島722-1

JR中央線『高蔵寺
駅』より徒歩17分
愛知県名古屋市守山区大字上志段味字上島715

JR中央線『高蔵寺
駅』より徒歩24分
愛知県名古屋市守山区大字上志段味字竹の腰361-1

JR中央線『高蔵寺
駅』より徒歩14分
愛知県名古屋市守山区大字上志段味字所下1114-2

JR中央線『高蔵寺
駅』より徒歩15分
愛知県名古屋市守山区大字上志段味字洞田1138-4

ゆとりーとライン『川宮
駅』より徒歩9分
愛知県名古屋市守山区川宮町390-2

JR中央線『神領
駅』より徒歩27分
愛知県名古屋市守山区東禅寺1202