建物内の別の間取りでも空室がある場合がございます。
ご指名物件の空室待ちなども受付けておりますので、お電話かメールにてスタッフまでお申付下さい。
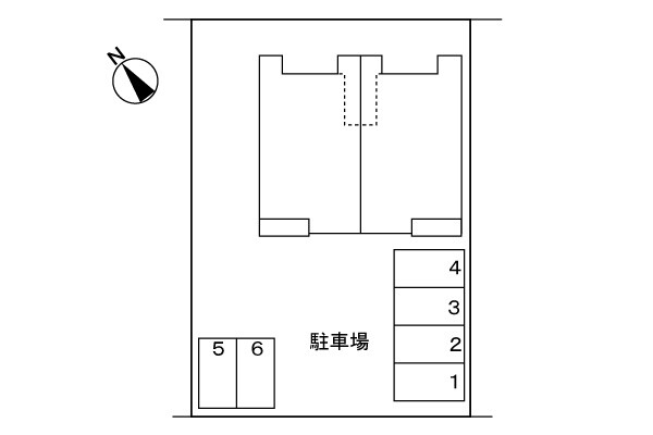
※写真や図と現況が異なる場合は現況を優先させていただきます。
| 所在階 | 間取り | 面積 | 賃料 | 管理費/共益費 | 敷金(保証金) | 礼金 | 採光向き | 詳細 |
|---|---|---|---|---|---|---|---|---|
| 1 階 | 2LDK | 56.53㎡ | 成約済 | 成約済 | 成約済 | 成約済 | 南 | 成約済 |
| 物件種別 | アパート | ||
|---|---|---|---|
| 物件名 | アネックスパークハイツ | ||
| 物件所在地 | 名古屋市名東区新宿1丁目 | ||
| 交通機関 |
|
||
| 周辺施設 |
|
||
| 特記事項 | 子供可、二人入居可、ネコ可、ペット相談、保証会社利用可 | ||
| 賃料 | 76,000円 | 管理費/共益費 | 3,500円 |
| 間取り | 2LDK | 専有面積 | 56.53㎡ |
| 総戸数 | 6戸 | 竣工月 | 2011年7月 |
| 建築構造 | 木造 | 建物階建 | 地上3階 |
| 駐車場 | 有 | 駐車料 | 7,700円 |
| 設備 | ガス(都市ガス)、24時間緊急対応、インターホン(TVモニター付き)、防犯カメラ、専用ゴミ置き場(24Hゴミ出し可)、駐輪場、角部屋、フローリング、ベランダ・バルコニー、シャッター雨戸(手動)、収納スペース、クローゼット、床下収納、下駄箱、バス・トイレ別(別室)、シャワー、追い焚き、浴室乾燥機、オートバス、脱衣所、給湯、ウォームレット、洗面所独立、シャンプードレッサー、洗面所にドア、洗濯機置き場(室内)、コンロ設置可、コンロ種類(都市ガス)、エアコン、24H換気システム、BS、CATV、インターネット使用料無料 | ||
| 所在地 | 〒465-0025 愛知県名古屋市名東区上社2-74 | ||
|---|---|---|---|
| 営業時間 | 10:00~18:00 | 定休日 | 年中無休 ※GW・お盆・年末年始は除く |

JR中央線『新守山
駅』より徒歩5分
愛知県名古屋市守山区金屋1丁目27-7

JR中央線『高蔵寺
駅』より徒歩14分
愛知県名古屋市守山区大字上志段味字所下1075

ゆとりーとライン『川村
駅』より徒歩3分
愛知県名古屋市守山区川北町178

ゆとりーとライン『川宮
駅』より徒歩9分
愛知県名古屋市守山区川宮町390-2

JR中央線『神領
駅』より徒歩27分
愛知県名古屋市守山区東禅寺1202

JR中央線『神領
駅』より徒歩28分
愛知県名古屋市守山区桜坂2丁目2202

JR中央線『神領
駅』より徒歩26分
愛知県名古屋市守山区下志段味1丁目3003

ゆとりーとライン『川村
駅』より徒歩6分
愛知県名古屋市守山区白沢町302

名鉄小牧線『上飯田
駅』より徒歩11分
愛知県名古屋市守山区瀬古1丁目252-4

名鉄小牧線『上飯田
駅』より徒歩12分
愛知県名古屋市守山区瀬古1丁目252-1

ゆとりーとライン『川宮
駅』より徒歩8分
愛知県名古屋市守山区大永寺町164

ゆとりーとライン『川宮
駅』より徒歩8分
愛知県名古屋市守山区鳥神町273