HOMMAX LEASING株式会社

  • お気に入り
  • プライバシーポリシー
  • サイトマップ
ヘヤリンク名古屋浄心店

営業時間 / 10:00~18:00

定休日 / 年中無休 ※GW・お盆・年末年始は除く

ヘヤリンク名古屋名東店

営業時間 / 10:00~18:00

定休日 / 年中無休 ※GW・お盆・年末年始は除く

アウル貴船 2階

  • 礼金0
  • 敷金0

お問い合わせ番号: 9780908

部屋紹介

角部屋!、照明設置されています。、便利な追焚機能付き!、人気の浴室乾燥機付き!、温水洗浄便座、シャンプードレッサー

間取り 間取り詳細 面積 賃料 管理費/共益費 敷金(保証金) 礼金 採光向き
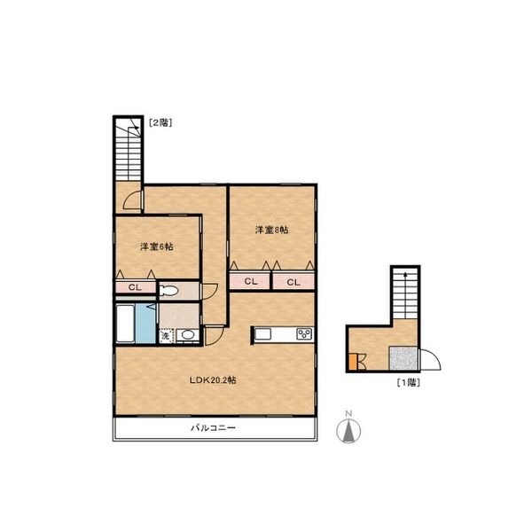
2LDK LDK 20.2畳
洋室 8畳
洋室 6畳
101.54㎡ 成約済 成約済 成約済 成約済

物件写真

物件情報は代表的なお部屋を掲載しております。
建物内の別の間取りでも空室がある場合がございます。
ご指名物件の空室待ちなども受付けておりますので、お電話かメールにてスタッフまでお申付下さい。
※写真や図と現況が異なる場合は現況を優先させていただきます。

部屋紹介

間取り 2LDK
間取り詳細 LDK 20.2畳 、 洋室 8畳 、 洋室 6畳

物件概要・設備

物件種別 アパート
物件名 アウル貴船
物件所在地 愛知県名古屋市名東区貴船2丁目
交通機関
  • 名古屋市営地下鉄東山線「上社駅」より徒歩20分
  • 名古屋市営地下鉄東山線「本郷駅」より徒歩18分
  • 名古屋市営地下鉄東山線「一社駅」より徒歩23分
  • 名古屋市営地下鉄東山線「藤が丘駅」より徒歩32分
周辺施設
  • スーパー: フィールクオリテ名東高針店 距離872m
  • コンビニ: ファミリーマート名東貴船二丁目店 距離267m
  • ドラッグストア: Zipドラッグ白沢高針 距離793m
特記事項 子供可、二人入居可、ファミリータイプ、ペット不可、保証人不要、保証会社利用可
賃料 成約済 管理費/共益費 成約済
敷金 成約済 礼金 成約済
フリーレント - 保険 年 円
間取り 2LDK 面積 101.54㎡
採光向き 契約形態 普通契約 2年
所在階 2階 入居可能日 即日
総戸数 2戸 竣工月 1992年4月
建築構造 鉄骨 建物階建 地上2階 
駐車場 駐車料 10,000円
火災保険 鍵交換代 成約済
保証会社 要加入 /  Casa
諸経費 成約済
設備 ガス(都市ガス)、管理形態(巡回)、インターホン(TVモニター付き)、日当り良好、全室向き(南向き)、角部屋、フローリング、全居室フローリング、照明器具、ベランダ・バルコニー、収納スペース、クローゼット、クローゼット数(3)、下駄箱、バス・トイレ別(別室)、シャワー、追い焚き、浴室乾燥機、脱衣所、給湯、3点給湯、温水洗浄便座、洗面所独立、シャンプードレッサー、洗濯機置き場(室内)、コンロ設置済、コンロ口数(3)、コンロ種類(都市ガス)、グリル、システムキッチン、エアコン、エアコン台数(1)
備考

近隣マップ

アウル貴船へのお問い合わせ

ヘヤリンク名古屋名東店

052-775-7581

お問い合せ番号: 9780908

所在地 〒465-0025 愛知県名古屋市名東区上社2-74
営業時間 10:00~18:00 定休日 年中無休 ※GW・お盆・年末年始は除く

新着お知らせ