HOMMAX LEASING株式会社

  • お気に入り
  • プライバシーポリシー
  • サイトマップ
ヘヤリンク名古屋浄心店

営業時間 / 10:00~18:00

定休日 / 年中無休 ※GW・お盆・年末年始は除く

ヘヤリンク名古屋名東店

営業時間 / 10:00~18:00

定休日 / 年中無休 ※GW・お盆・年末年始は除く

プレサンス ロジェ 名古屋浅間町ザ・レジデンス 11階

  • 礼金0
  • 敷金0
  • ペット相談
  • 駅近

お問い合わせ番号: 11540792

部屋紹介

お部屋探しはヘヤリンク名古屋で♪

間取り 間取り詳細 面積 賃料 管理費/共益費 敷金(保証金) 礼金 採光向き
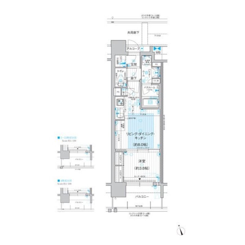
1LDK LDK 8畳
洋室 3.8畳
31.86㎡ 成約済 成約済 成約済 成約済

物件写真

物件情報は代表的なお部屋を掲載しております。
建物内の別の間取りでも空室がある場合がございます。
ご指名物件の空室待ちなども受付けておりますので、お電話かメールにてスタッフまでお申付下さい。
※写真や図と現況が異なる場合は現況を優先させていただきます。

部屋紹介

間取り 1LDK
間取り詳細 LDK 8畳 、 洋室 3.8畳

物件概要・設備

物件種別 マンション
物件名 プレサンス ロジェ 名古屋浅間町ザ・レジデンス
物件所在地 愛知県名古屋市西区新道1丁目
交通機関
  • 名古屋市営地下鉄鶴舞線「浅間町駅」より徒歩4分
  • 名古屋市営地下鉄東山線「亀島駅」より徒歩21分
  • 名古屋市営地下鉄桜通線「国際センター駅」より徒歩18分
  • 名鉄名古屋本線「栄生駅」より徒歩20分
周辺施設
  • コンビニ: ファミリーマート名古屋浅間町店 距離390m
  • スーパー: FRESH FOODS FEEL(フレッシュフーズフィール) 距離527m
  • ドラッグストア: ウエルシア名古屋花の木店 距離752m
特記事項 二人入居可、分譲タイプ、ペット相談、保証会社利用可
賃料 成約済 管理費/共益費 成約済
敷金 成約済 礼金 成約済
フリーレント - 保険 年 円
間取り 1LDK 面積 31.86㎡
採光向き 契約形態 普通契約 2年
所在階 11階 入居可能日 即日
総戸数 - 竣工月 2024年9月
建築構造 RC 建物階建 地上15階 
駐車場 駐車料 -
火災保険 鍵交換代 成約済
保証会社 要加入 /  プレサンスギャランティ
諸経費 成約済
設備 ガス(都市ガス)、インターホン(TVモニター付き)、防犯カメラ、ディンプルキー、ダブルロック、オートロック、宅配ボックス、専用ゴミ置き場(あり)、駐輪場、バイク置き場、日当り良好、眺望良好、全室向き(南向き)、南向きリビング、フローリング、全居室フローリング、照明器具、全室照明付、ベランダ・バルコニー、クローゼット、クローゼット数(1)、下駄箱、バス・トイレ別(別室)、シャワー、追い焚き、浴室乾燥機、オートバス、脱衣所、給湯、温水洗浄便座、ウォームレット、洗面所独立、シャンプードレッサー、洗面所にドア、洗濯機置き場(室内)、コンロ設置済、コンロ口数(2)、コンロ種類(都市ガス)、システムキッチン、エアコン、床暖房、24H換気システム、BS、CS、CATV、インターネット使用料無料
備考

近隣マップ

プレサンス ロジェ 名古屋浅間町ザ・レジデンスへのお問い合わせ

ヘヤリンク名古屋西店

052-501-1222

お問い合せ番号: 11540792

所在地 〒452-0821 愛知県名古屋市西区上小田井2丁目176
営業時間 10:00~18:00 定休日 年中無休 ※GW・お盆・年末年始は除く

新着お知らせ